双金属标的应用 twin metallic marker_技术交流_技术交流_仙桃市天祥测量标志有限公司
你好!欢迎来到仙桃市天祥测量标志有限公司!
 English      中文版         

【联系方式】
  地址:湖北仙桃市叶王路叶王工业园内
  电话:13593969030
  传真:0728-3247010
  邮箱:clbz07@163.com

底部微信平台二维码

【二维码 扫一扫】

技术交流
位置:首页技术交流双金属标的应用 twin metallic marker

双金属标的应用 twin metallic marker

发布:2026/1/4 来源: 作者: 浏览:0



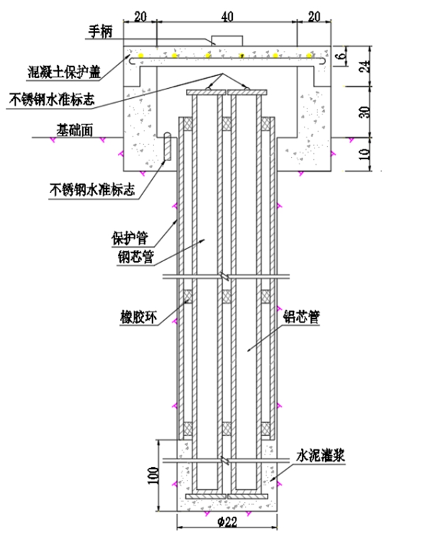
双金属标主要用于工程安全监测领域,尤其是大坝、岩体等结构的垂直位移监测,其作用主要包括以下方面:

1、消除温度影响利用钢管和铝管(或其他两种线膨胀系数不同的金属)的热胀冷缩差异,通过计算两者顶部高程差的变化,自动消除地温变化引起的基准点位移误差,确保监测数据的准确性。



2、提供稳定基准作为垂直位移监测的工作基准点,其底部与深部基岩紧密结合,能稳定反映地表相对于基岩的垂直位移变化,为大坝、边坡等结构的变形监测提供可靠的参考基准。

 

3、高精度测量可精确测量微小的垂直位移量(通常精度可达±0.1mm甚至更高),满足工程安全监测对高精度数据的需求,帮助及时发现结构的沉降、抬升或其他异常变形。

 

4、长期稳定性金属材料具有良好的耐久性,且通过合理的安装和防护设计,能在复杂地质和环境条件下长期稳定工作,适应不同季节、气候条件下的监测需求。

 

5、数据校核与传递作为水准测量的起算点或中间传递点,为工程各部位的高程测量提供统一基准,确保不同监测点之间的数据可比性和一致性,便于整体工程的安全评估和分析。



总之,双金属标是工程安全监测中不可或缺的设备,为保障大坝、桥梁、隧道等重大工程的安全运行提供了关键的技术支持。




【字体: 】 【关闭窗口
上一篇:自动化监测仪器搭载平台保护装置
下一篇:建筑物沉降观测基本要求
 首页  电话  短信